Названа дата старта реконструкции железнодорожного вокзала Саратова
23 ноября 2018, 12:40
В эти минуты начальник ПривЖД Сергей Альмеев продолжает отвечать на вопросы депутатов Саратовской областной думы.
Сергей Курихин (ЕР) поблагодарил гостя за короткий, но информативный доклад, адресовав вопросы о реконструкции здания железнодорожного вокзала.
Депутат также подчеркнул, что в деятельности "СППК" происходят положительные изменения.
"Саратовская пригородная пассажирская компания имеет не только 19 млн рублей экономии. Но на 2019 год мы получили более двух млрд рублей в качестве инвестиций - это новый подвижной состав. Мы получим шесть новых поездов, и мы закроем всю потребность в пригородных составах. Важно не то, что они просто красивые, а то, что они комфортные.
Еще один вопрос, который очень сильно нас интересует – обустройство в центре Саратова модульных платформ. Мы в Волгограде на остановочном пункте построили модульную платформу. Пожилым людям будет удобно проходить в поезда.
У нас будет остановочный пункт Сабуровка, рядом с новым аэропортом "Гагарин". Это 36-38 минут из Саратова. Если еще поработаем на инфраструктурой – 30 минут. Там будет две платформы, мы вписывается в архитектуру. К 2020 году мы планируем построить надземный переход с лифтовыми подъемниками для маломобильных граждан.
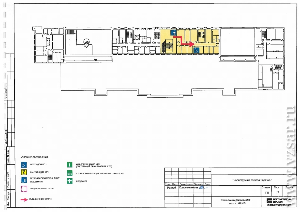
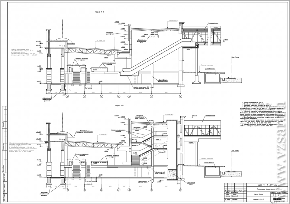
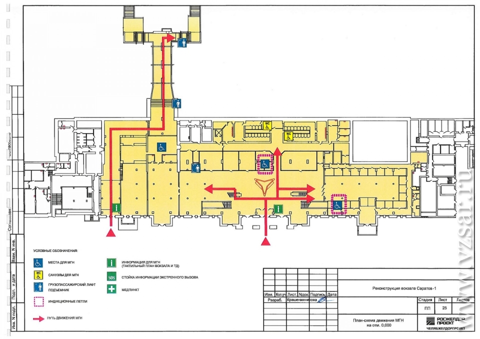
Теперь по вокзалу Саратова. В сентябре мы получили решение городских властей об архитектурном облике вокзала. Это вокзал с вынесенным входом, подземным переходом и так далее. Нам согласовали архитектуру, но нам важнее было другое. Это системы жизнеобеспечения – канализация, электрика, водоснабжение. Нам пришлось закладывать строительство электропункта.
21 числа мы в Астрахани встречались с руководителем дирекции вокзалов РЖД. Он не ожидал, что мы так быстро сделаем. В нашем понимании мы строительство начнем в июле-августе 2019 года", - сказал Альмеев.
Сергей Курихин предложил взять на парламентский контроль вопрос организации транспортного движения на Привокзальной площади.
Начальник ПривЖД поддержал депутата: "Некуда поставить машины, собираешь отрицательные слова и заходишь в вокзал с отрицательным настроением. Мы сейчас ни о каких выкупах речи не ведем. В декабре-январе мы получаем положительное заключение по общежитию и комбинату питания, которые мы безвозмездно передаем властям".
Альмеев подчеркнул, что в перспективе мэрия обещала расселить людей из общежития и освободить площадку для парковки.
Курихин отметил, что снос и расселение - дорогостоящее мероприятие, оценивается примерно в 100 миллионов рублей, и пока в этой части нет никакой активности со стороны городских властей.
Парламентарий обратился к председателю облдумы Ивану Кузьмину (ЕР) с просьбой взять на депутатский контроль этот вопрос и провести отдельную встречу.
Спикер согласился и ответил, что по итогам обсуждения будут зафиксированы все предложения.
ПривЖД намерена компенсировать негативный экологический эффект от строительства нового объекта на Рабочей.
"Вот мне недавно звонил один журналист. Спрашивал по поводу деревьев на Рабочей. Нехороший негативный эффект был. С точки зрения правового поля, мы получили все разрешения на строительство центра связи. Мы с молодежью договорились, что с апреля по май мы высадим новую аллею", - сказал Сергей Альмеев.
Также в ходе встречи он пообещал обустроить платформу возле Увека.
В завершение председатель облдумы и глава ПривЖД подписали соглашение о сотрудничестве.
Ссылка по теме:
Путь из Саратова в Москву на поезде займет меньше времени
Подпишитесь на канал "ИА "Взгляд-инфо". Новости Саратова" в MAX
Подпишитесь на телеграм-канал "ИА "Взгляд-инфо". Вне формата": заходите - будет интересно
Вы можете прислать сообщения, фото и видео в наш телеграм-бот @Vz_feedbot
Рекомендуемые материалы
Главные новости
Стали свидетелем интересного события?
Поделитесь с нами новостью, фото или видео в мессенджерах:
или свяжитесь по телефону или почте

















































